Zum Hauptinhalt springen

HAUS DER FASSADE
IN OWINGEN

Beauftragung: Bis Vergabe
Zeitraum: 01/2017 - 05/2018
Bauherr: Privat
Bilder: Stefan Kuhn




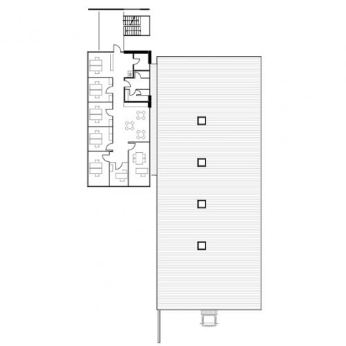
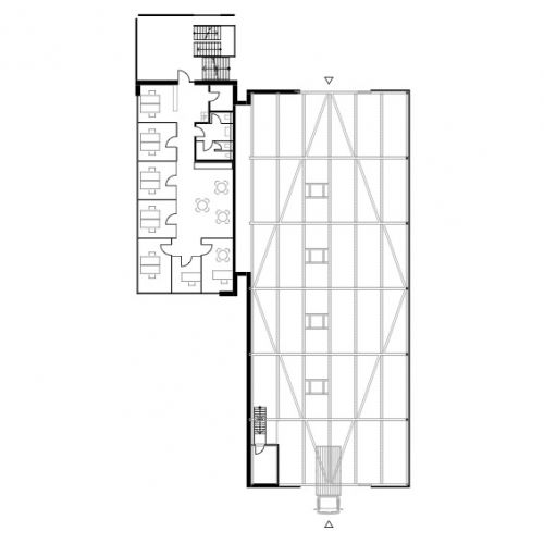
Neubau eines 3-geschossigen Bürogebäudes mit Produktionshalle. Bürogebäude in Stahlbetonskelettbauweise mit Stahlbeton-Außenwänden, bekleidet mit einer hinterlüfteten Fassade. Konstruktion der Produktionshalle in Holzbauweise mit Bekleidung aus Alu-Sandwichpaneelen.